Tu navegador no soporta el uso de javascript y por lo tanto muchas de las funcionalidades de esta web no estarán disponibles. Inmobiliaria Gándara - PISO REFORMADO 3 HAB EN BARALLOBRE - FENE
687585151
RESERVADO
PISO REFORMADO 3 HAB EN BARALLOBRE - FENE
Barallobre (Fene) - REF. P001273

84 m2

3

1

2
venta:
89.000 €
Descripción
Se pone a la venta piso reformado con muy buenas calidades en Barallobre - Fene, situado en un entorno tranquilo y residencial, ideal para quienes buscan comodidad diaria sin renunciar a un paisaje abierto. La ubicación combina la calma de una zona poco transitada con agradables VISTAS A LA RIA en la parte frontal y vistas a la montaña en la parte posterior, aportando luz y sensación de amplitud.

El edificio, construido en 1970, se encuentra en buen estado de conservación, con fachada y tejado arreglados, lo que supone un valor añadido y tranquilidad a medio y largo plazo. La vivienda se encuentra en la 2ª planta (no dispone de ascensor) y fue objeto de una REFORMA INTEGRAL en 2006, mejorando distribución, instalaciones, acabados y aislamientos.

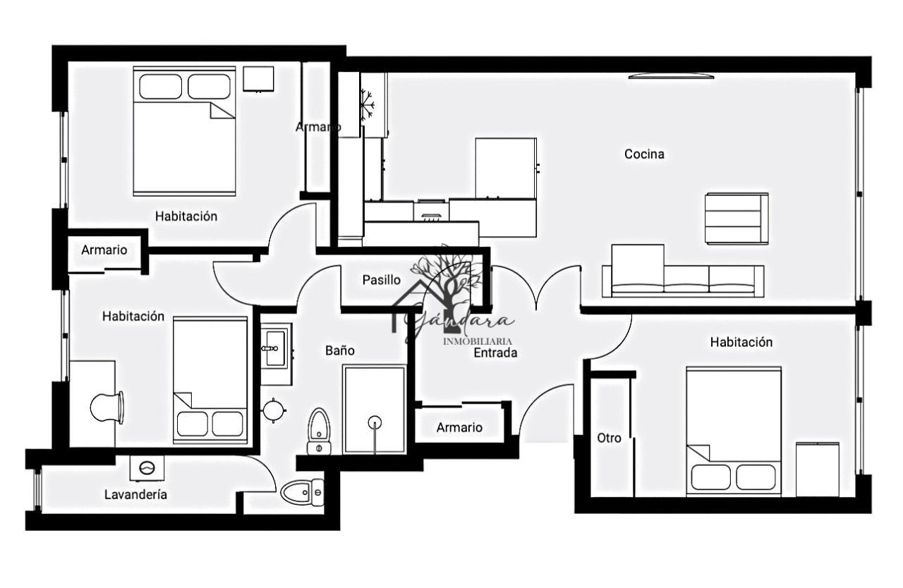
En el interior encontramos un SALON amplio integrado con COCINA AMERICANA, creando un espacio abierto, moderno y muy funcional para el día a día. La cocina se entrega amueblada y equipada con electrodomésticos, encimeras y frentes diseñada con mármol de importación, lista para su uso desde el primer momento.

La zona de descanso se distribuye en tres habitaciones, todas con ARMARIOS EMPOTRADOS revestidos en roble, lo que garantiza una gran capacidad de almacenaje sin restar superficie útil. Además, la vivienda dispone de un práctico HALL con ARMARIO EMPOTRADO adicional, un elemento muy valorado para mantener el orden desde la entrada.

El BAÑO es completo y cuenta con ducha, con acceso directo a una LAVANDERIA independiente que dispone de tendal de techo y tendal exterior, una solución muy cómoda dentro de la vivienda.

En cuanto a calidades, destacan los suelos de gres cerámico, las puertas de roble y la carpintería interior a juego con los armarios empotrados, aportando continuidad estética y sensación de calidad. La vivienda dispone de calefacción eléctrica mediante radiadores de bajo consumo y agua caliente por gas natural.

Una vivienda lista para entrar a vivir, con mejoras ya realizadas, buenas calidades y un entorno que marca la diferencia. Si buscas tranquilidad, vistas a la ría y un hogar cuidado, esta puede ser tu próxima casa. Contacta para más información o para concertar tu visita.

Nota: Este anuncio es de carácter informativo, no contractual. Está sujeto a modificaciones y puede contener algún error.
Características
Referencia
P001273
Año de reforma
2006
Antigüedad
56 años
Tipo de piso
Piso
Cert. Energética
F
Superficie
84 m2
Habitaciones
3
Baños
1
Calefacción
Tipo calefacción
Eléctrica
Ascensor
Garaje incluido
Trastero
Metros Trastero
20 m2
Tipo suelo
Gres
Tipo carpintería
Roble
Cocina amueblada
Cocina americana
Luminoso
Exterior
Vistas
Electrodomésticos
Lavadero
Armarios empotrados
(4)
Ubicación
La dirección del inmueble es aproximada.
Escalas de eficiencia


Simulador de Hipoteca


Impuestos y gastos:

Importe del préstamo:

Tu cuota mensual:


*Cálculos estimativos. Para más información contáctenos.
Compartir
Contáctanos
Nombre
Teléfono
E-mail
Asunto
Consulta
Información Protección de Datos Finalidades: Responder a sus solicitudes y remitirle información comercial de nuestros productos y servicios. Legitimación: Su consentimiento. Destinatarios: No están previstas cesiones de datos. Derechos: Podrá ejercer sus derechos, entre otros, a acceder, rectificar, limitar y suprimir sus datos.
Acepto el tratamiento de datos con fines publicitarios tal como se indica en la política de privacidad.